MAISON TOULOUSE
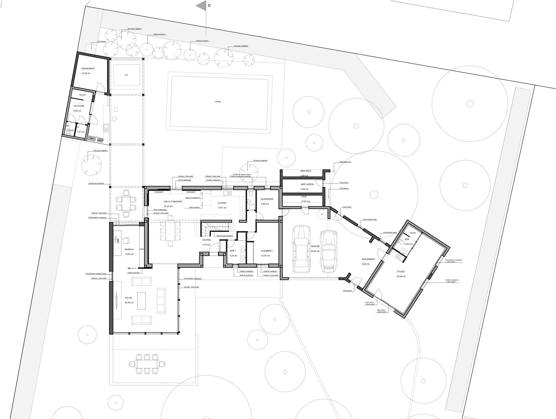
Le projet consiste en l'extension d'une maison individuelle, avec un salon, un bureau, une pergola, un pool house, des garages et un studio.
L'extension cherche la lumière du nord et la communication avec la piscine, le tout en cherchant l'intimité par rapport à la route au sud.
Projet réalisé en tant que salariée chez Raynal Architecture (81). Participation au dessin et à la conception du projet.




