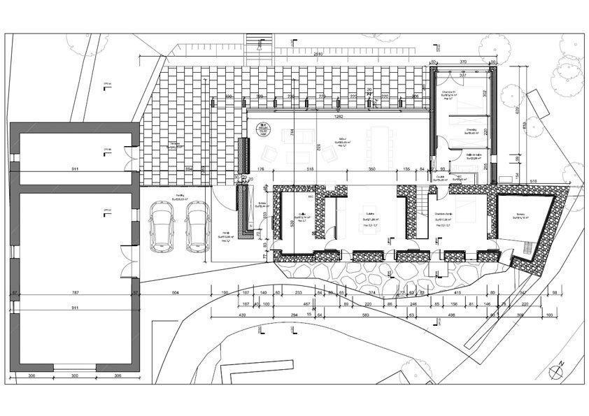
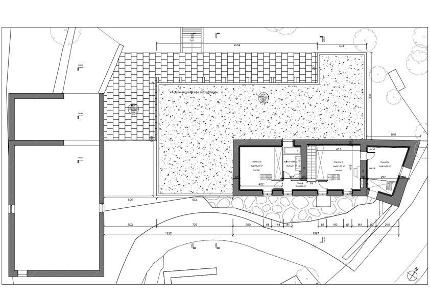
MAISON CORTEN
Le projet consiste en la rénovation et l'extension d'une grange.
L'extension cherche la lumière du nord et la communication avec la piscine, le tout en cherchant l'intimité par rapport à la route au sud.
Projet réalisé en tant que salariée chez Hugues Tournier Architecte. Participation au dessin et à la conception du projet.
Photos après travaux
(Travaux réalisés par le client lui-même)





